
Abtsdorf – Attersee am Attersee




Details zum Objekt
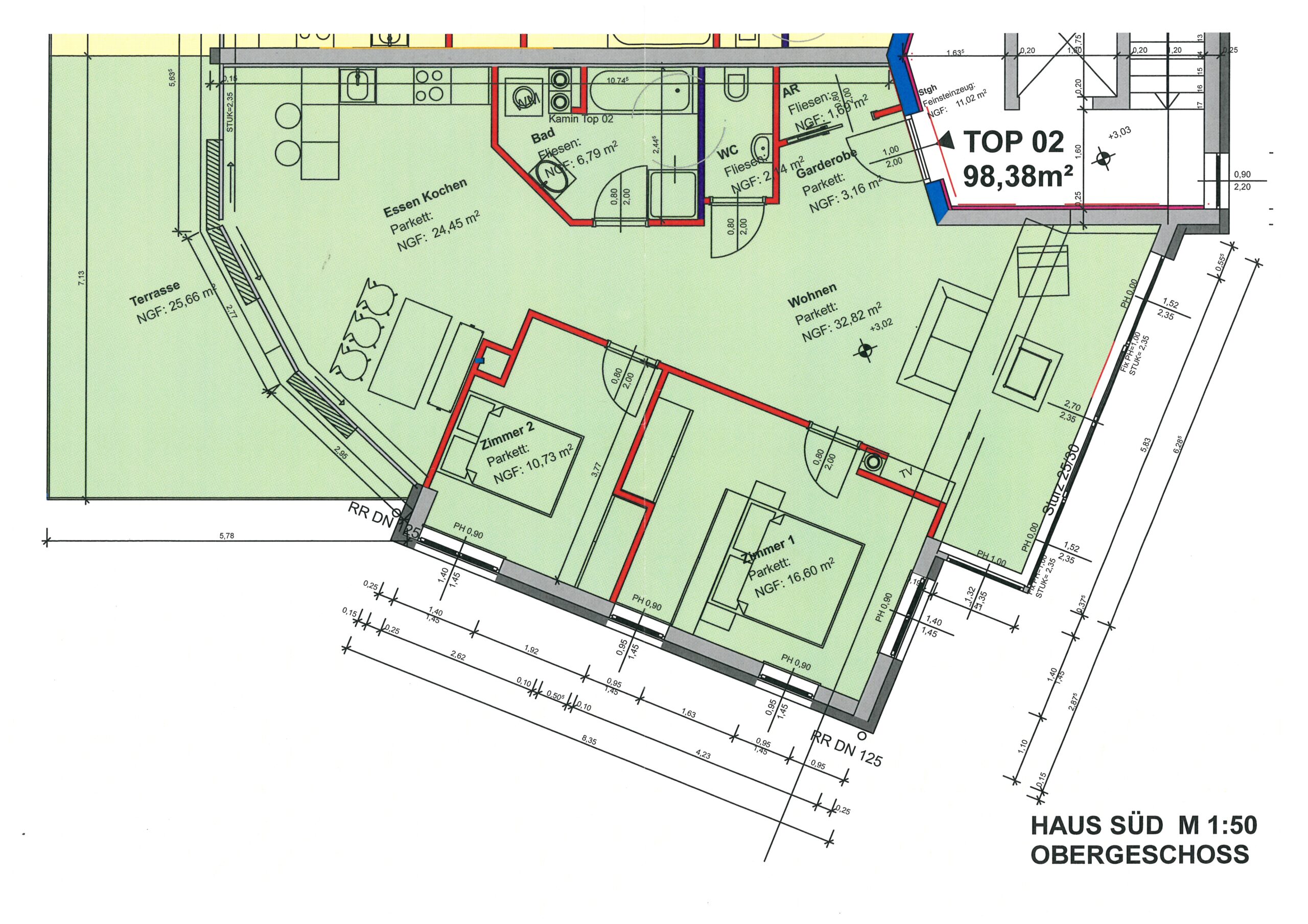
Wenig bewohnt, gut gelegen und top möbliert, so präsentiert sich diese zum Verkauf stehende 98 m² - Wohnung mit großer Terrasse und Doppelgarage. Die vor rd. 15 Jahren bewilligte Wohnanlage „Kirchwiesn“ in Abtsdorf liegt nur wenige Gehminuten vom 18-Loch-Golfplatz am Attersee entfernt. Zur Autobahn, zum Ort Attersee und zum See sind es nur wenige Fahrminuten. Im Koch-Essbereich der Wohnung sorgt der eingebaute Kamin an kalten Herbst- und Wintertagen für eine gute Atmosphäre. Die offen gestaltete Küche mit Essbar und unmittelbarem Ausgang auf die Sonnenterrasse lässt alle Optionen offen. Ob zwei Personen oder eine größere Freundesrunde – die Wohnungseinteilung bietet Platz für alle Anlässe.
Zahlen & Daten
| Grundfläche: | 2381 m2 |
| Wohnfläche: | 98 m2 |
| Anzahl Zimmer: | 3 |
| Baujahr/letzte Renovierung: | 2012 |
| Bezugsfertig: | ab sofort |
| Energieausweis: | in Arbeit |
| Kaufpreis | € 675.000,-- |
| Provision: | 3% zzgl. 20% USt. |
Das Gusto-Stückerl dieses Objekts
Lichtdurchflutete Wohnung mit Seeblick und Südwestterrasse
Downloads
Hier finden Sie noch weitere Details zum Objekt als Download.

Walter Mairinger
Immobilienmakler
Hinweis:
Das Angebot ist freibleibend und unverbindlich. Die Angaben beruhen auf Informationen und Unterlagen des Eigentümers und/oder Dritter und erfolgen ohne Gewähr. Änderungen und Irrtümer vorbehalten! Der Makler ist kraft bestehenden Geschäftsgebrauchs als Doppelmakler tätig.
Sie befinden sich hier: Startseite » Verkauf »
